Skip to main content
Grefrath-Mülhausen

6 Doppelhäuser für Junge und Ältere, Familien mit Kindern, Paare und Alleinstehende.

Beschreibung

Diese modernen und energieeffizienten Doppelhaushälften werden von der Milike Investbau GmbH aus Kempen errichtet.

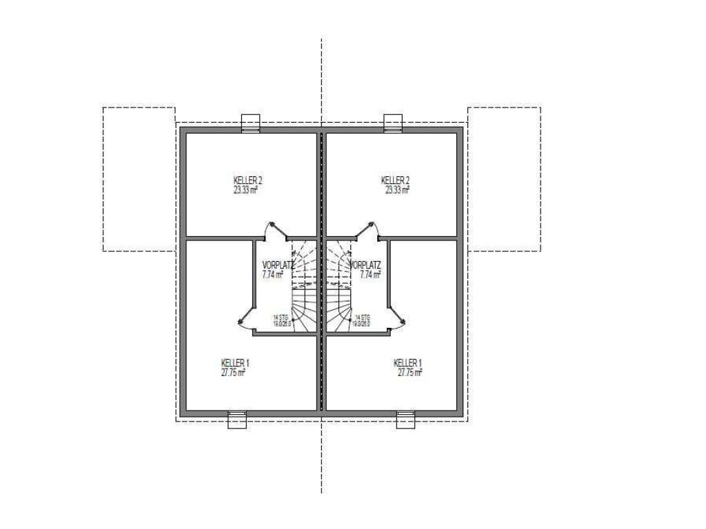
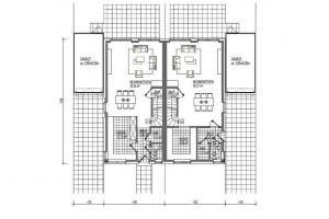
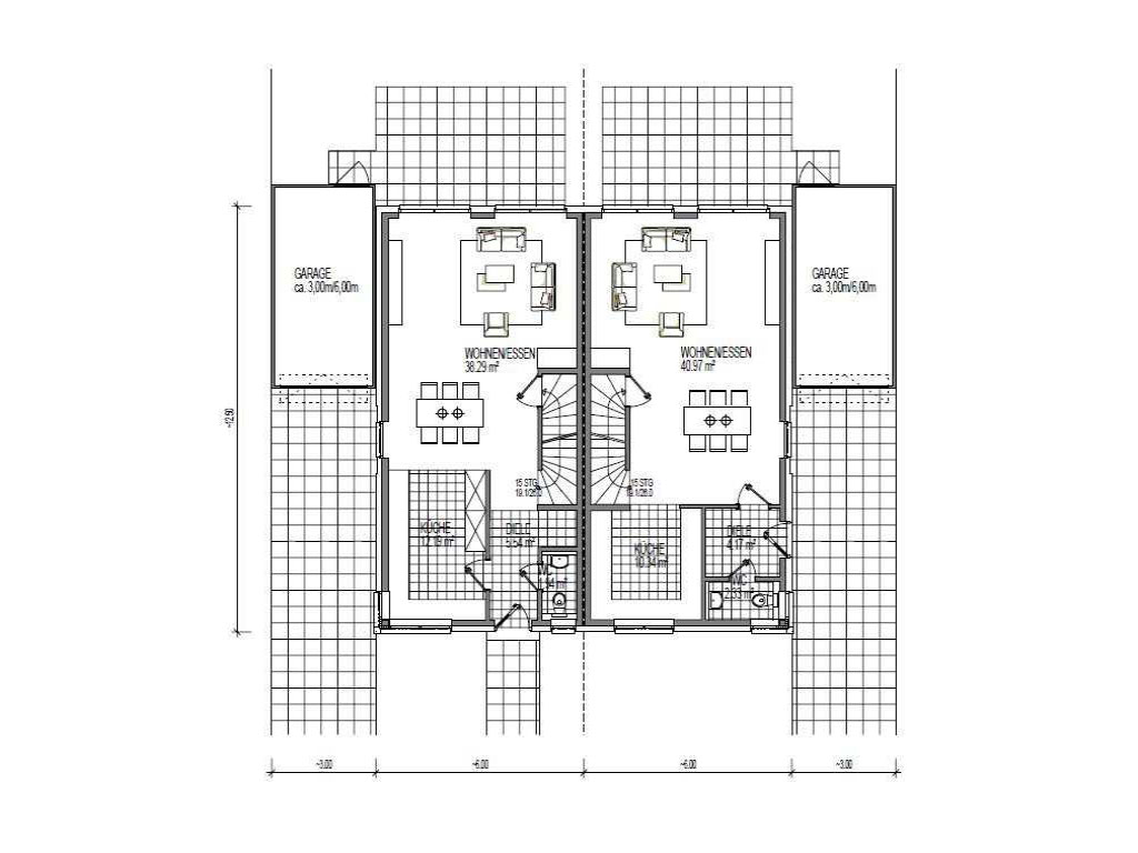
Es entstehen Doppelhaushälften mit Wohnflächen von insgesamt ca. 129,00 m² (wahlweise mit und ohne Keller, Nutzfläche Keller ca. 50m²), welche sich auf zwei Vollgeschosse (Erd- und Obergeschoss) sowie das Dachgeschoss (Studio) wie folgt verteilen:

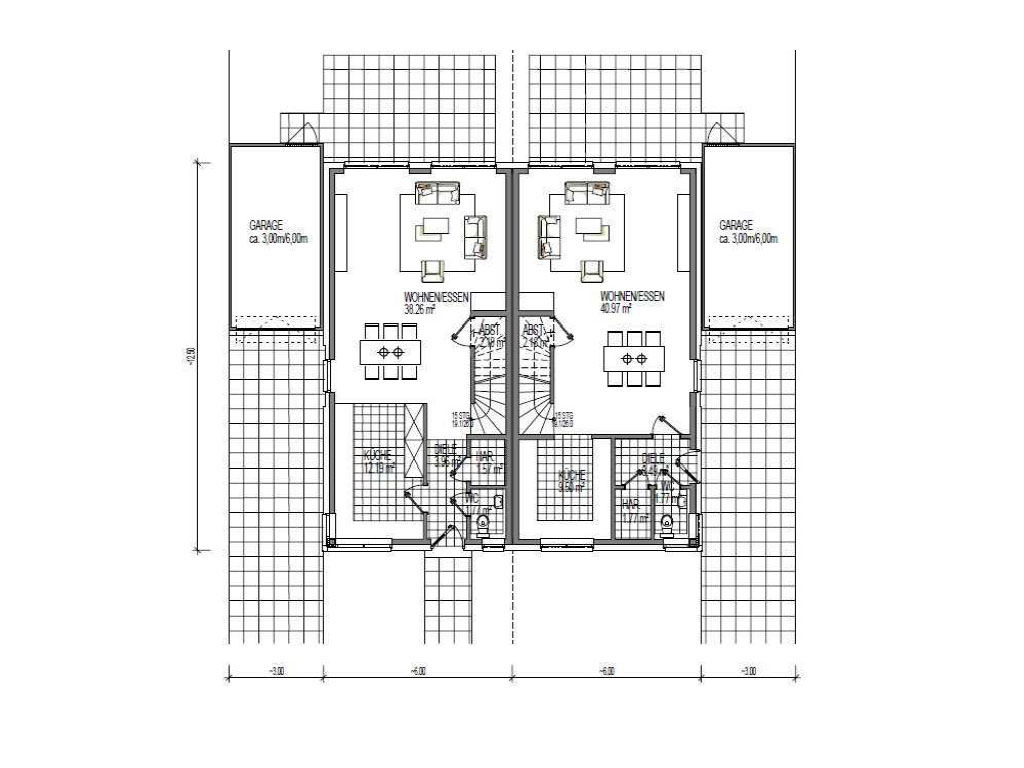
Erdgeschoss: Diele, Hauswirtschaftsraum (bei Bauweise ohne Keller), Gäste-WC, Küche, Essen, Wohnen.

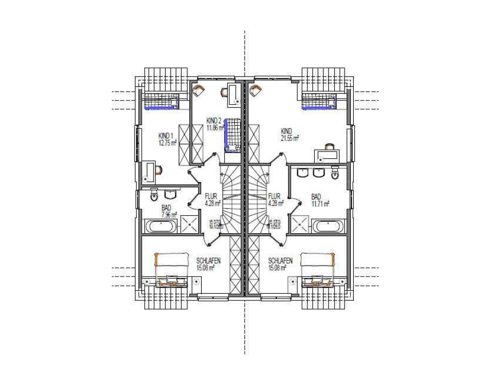
Obergeschoss: Ein -Zwei Kinderzimmer, Elternschlafzimmer, Badezimmer, Diele.

Spitzboden / Studio: Hier stehen 17,53 m² Wohnfläche zur Verfügung.

Zum Haus gehört eine Garage sowie ein davor liegender Stellplatz im Freien.

Bei der Planung des Hauses wurde auf eine gesunde und nachhaltige Bauweise Wert gelegt. In einer ruhigen, familienfreundlichen Lage in der Ortsmitte von Grefrath-Mülhausen, werden diese modernen Doppelhäuser gebaut. Sie sind eingebettet in ein bereits bestehendes Wohnviertel. Auf zwei Etagen bietet diese Immobilie alles, was man zum Wohlfühlen benötigt. Das Erdgeschoss ist geprägt durch den lichtdurchfluteten Wohn- und Essbereich. Von hier aus erreicht man die großzügige Terrasse mit angrenzendem Garten, in dem man die Sonnenstunden mit Freunden und der Familie genießen kann. Das Obergeschoss bietet ein oder zwei Kinderzimmer, ein Elternschlafzimmer und ein großzügiges Badezimmer. Vervollständigt wird das Raumangebot durch einen Spitzboden mit Studio, welches z. B. als Arbeitszimmer eingerichtet werden kann.

Sonstiges

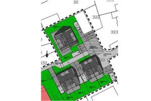
Die hier entstehende Wohnanlage wird zunächst mit 6 Doppelhäusern bebaut.

In Richtung Hauptstraße wird ein Konzept für generationenübergreifendes Wohnen konsequent fortgeführt und betrieben.

* Preise zunächst auf Anfrage

Ausstattung

Alle Häuser werden schlüsselfertig mit modernen und hochwertigen Ausstattungen übergeben, so dass die zukünftigen Eigentümer nur noch einziehen müssen. Die Ausstattungen sowie die Wahl der Bauweise, z. B. mit und ohne Kellergeschoss, ist vom Erwerber zu bestimmen. Sie haben also die Möglichkeit, Ihr neues Zuhause nach Ihren Vorstellungen zu gestalten!

Lage

Mülhausen gehört zur Gemeinde Grefrath und liegt ca. 4 km von Kempen entfernt. Der hier entstehende Wohnpark wird in ein bereits erschlossenes und etabliertes Wohngebiet integriert. Die nächst möglichen Autobahnanbindungen sind mit der A40 sowie der A61 gegeben. Einkaufsmöglichkeiten für den täglichen Bedarf sind im Ort Mülhausen vorhanden. Eine Schule (Gymnasium) und ein Kindergarten sowie eine Eishalle befinden sich in unmittelbarer Nähe des Bauvorhabens. Die nächst größeren Städte Grefrath und Kempen sind mit öffentlichen Verkehrsmitteln oder mit dem Auto schnell erreicht und bieten ein umfangreiches Kultur- und Freizeitangebot für Jung und Alt.

Möchten Sie mehr über dieses Projekt erfahren?

Milike Investbau GmbH


Heinrich-Horten-Str. 36
47906 Kempen

Kontakt


  • +49 2152 - 807919-39
  • +49 2152 - 807919-29