Skip to main content
Grefrath-Mülhausen

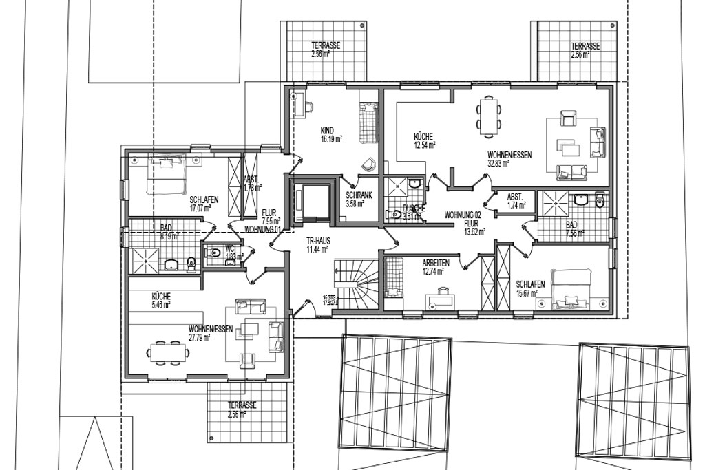
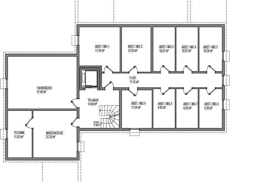
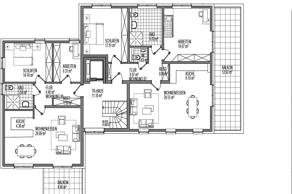
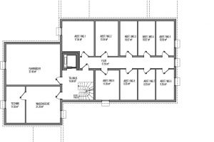
Mehrfamilienhaus mit 10 Wohnungen zwischen 41,24 und 107m²

Beschreibung

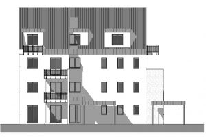
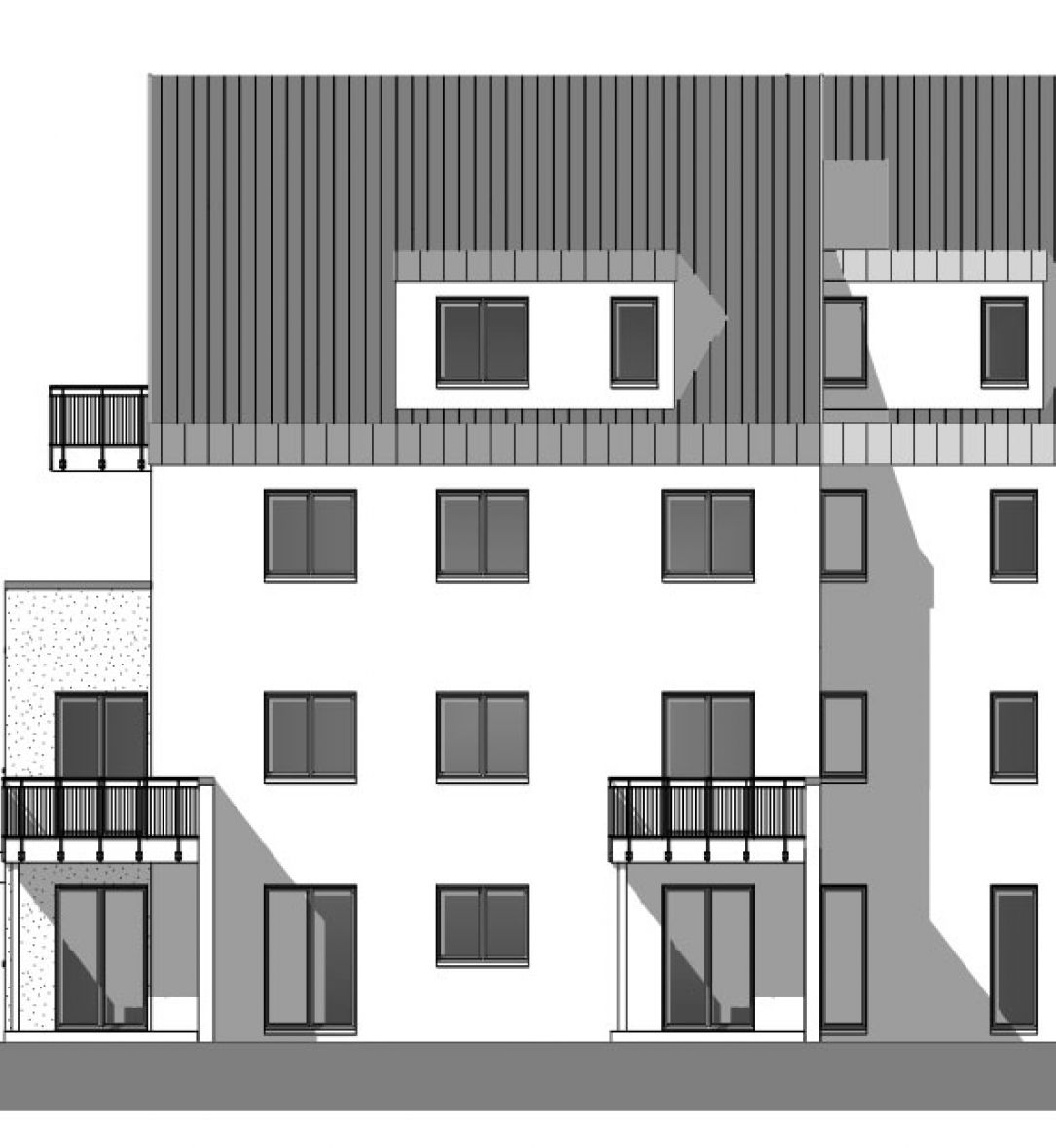
Das hier geplante Mehrfamilienhaus erfüllt höchste Ansprüche. Der Standort des Hauses ist gut gewählt und wird in einen geplanten Wohnpark integriert, ein Garant für bequemes und komfortables Wohnen für Jung und Alt.

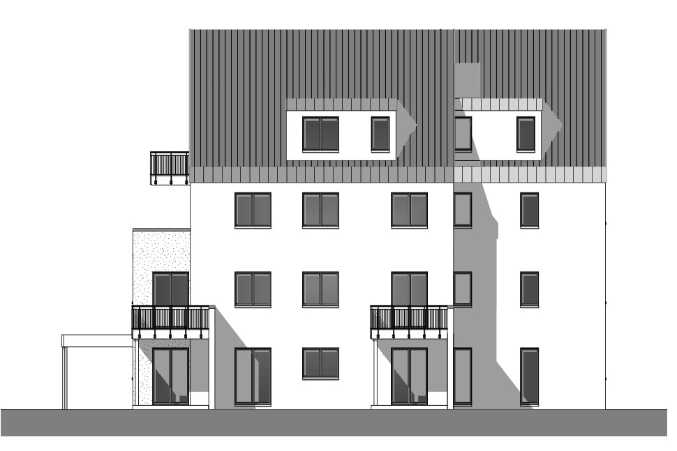
Hier entsteht ein, durch moderne und stilvolle Architektur, geprägtes Objekt mit einer gelungenen und funktionalen Grundrissgestaltung in allerbester Ausstattung. Die Aufteilung der Wohnungen, bietet alle Freiräume zur individuellen Entfaltung.

Mit dem Personenaufzug erreicht man bequem, vom Keller bis zum Dachgeschoss, alle Ebenen.

Projekt Details

Objekt:                1 Mehrfamilienhaus

Standort:            47929 Grefrath-Mülhausen

Baujahr:              2022

Geplante Fertigstellung:              Ende 2024

In diesem Mehrfamilienhaus können Sie sich auf 10 wunderschöne Wohnungen mit 41,24 m ² - 107 m² freuen.

Ausstattung

Alle Wohnungen werden schlüsselfertig mit modernen und hochwertigen Ausstattungen übergeben, so dass die zukünftigen Eigentümer nur noch einziehen müssen. Die Ausstattungen sowie die Wahl der Bauweise, z. B. mit und ohne Kellergeschoss, ist vom Erwerber zu bestimmen. Sie haben also die Möglichkeit, Ihr neues Zuhause nach Ihren Vorstellungen zu gestalten!

Lage

Mülhausen gehört zur Gemeinde Grefrath und liegt ca. 4 km von Kempen entfernt. Der hier entstehende Wohnpark wird in ein bereits erschlossenes und etabliertes Wohngebiet integriert. Die nächst möglichen Autobahnanbindungen sind mit der A40 sowie der A61 gegeben. Einkaufsmöglichkeiten für den täglichen Bedarf sind im Ort Mülhausen vorhanden. Eine Schule (Gymnasium) und ein Kindergarten sowie eine Eishalle befinden sich in unmittelbarer Nähe des Bauvorhabens. Die nächst größeren Städte Grefrath und Kempen sind mit öffentlichen Verkehrsmitteln oder mit dem Auto schnell erreicht und bieten ein umfangreiches Kultur- und Freizeitangebot für Jung und Alt.

Möchten Sie mehr über dieses Projekt erfahren?

Milike Investbau GmbH


Heinrich-Horten-Str. 36
47906 Kempen

Kontakt


  • +49 2152 - 807919-39
  • +49 2152 - 807919-29