Skip to main content
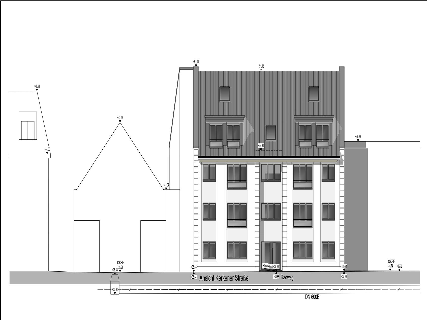
Kerkener Straße in Kempen

Exklusive barrierefreie Wohnungen, mit Blick auf das schöne Kuhtor.

Projekt Details

  • Objekt
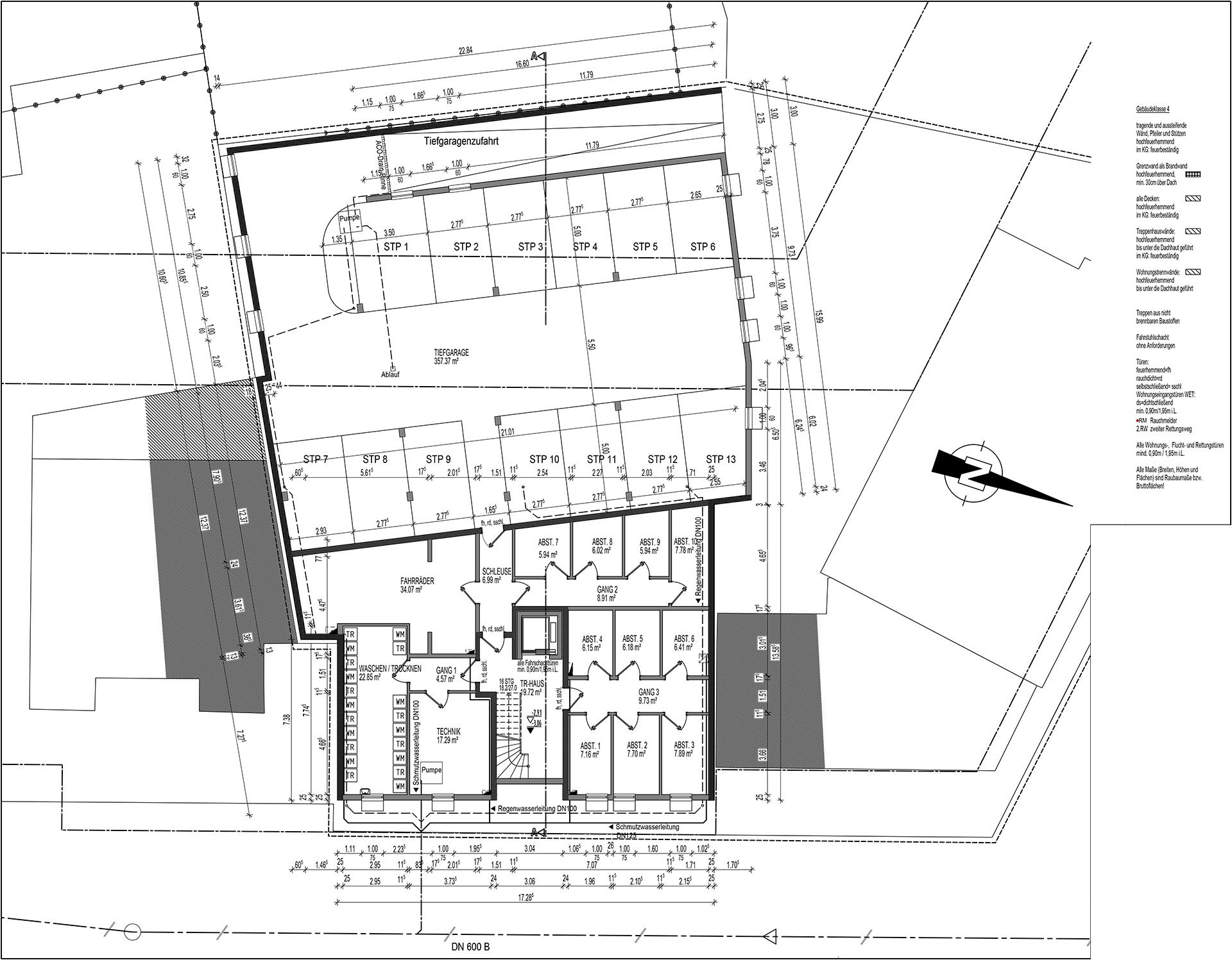
    1 Mehrfamilienhaus
  • Standort
    47906 Kempen
  • Baujahr
    2019
  • Geplante Fertigstellung
    Ende 2020

Beschreibung

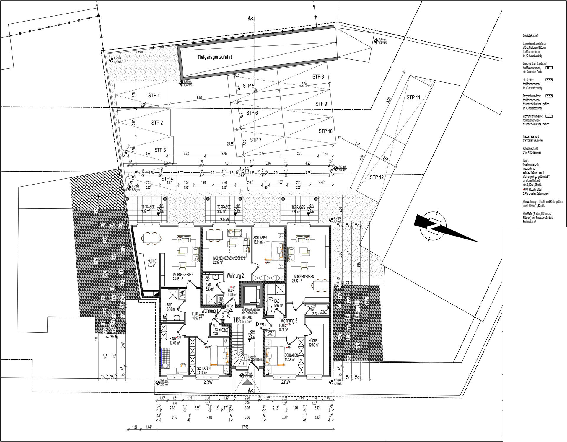
In diesem Mehrfamilienhaus können Sie sich auf 10 wunderschöne Wohnparteien mit 52m² – 113m², verteilt auf 2-6 Zimmer/Wohnung freuen.

Lage

Wohnen am Rande der wunderschönen Altstadt in Kempen mit Blick auf das schöne Kuhtor.

Die Infrastruktur ist perfekt - Egal ob Kino, Apotheke oder Supermarkt - alles ist innerhalb von wenigen Minuten zu Fuß zu erreichen. Die Autobahn (A40) erreichen sie in 7 Minuten. Schulen und Kindergärten befinden sich ebenfalls in direkter Nähe.

Möchten Sie mehr über dieses Projekt erfahren?

Milike Investbau GmbH


Heinrich-Horten-Str. 36
47906 Kempen

Kontakt


  • +49 2152 - 807919-39
  • +49 2152 - 807919-29